Dagslysberegninger
Dagslysberegninger til BR18, 10%-reglen og DGNB
Dagslys skal dokumenteres med den metode, projektet faktisk kræver. I nogle boligprojekter kan BR18 dokumenteres med 10%-reglen for korrigeret glasareal. I andre projekter er der behov for timebaserede dagslyssimuleringer med Daylight Autonomy, for eksempel ved DGNB, bygherrekrav eller komplekse facadeforhold.
SORI udfører dagslysberegninger i både tidlige faser og myndighedsprojekt. Vi arbejder med Revit-model, LightStanza, Radiance, rumgeometri, vinduer, lystransmittans, omkringliggende skygger, overfladereflektanser og relevante krav til dokumentation.
Vi kan hjælpe med
- Eftervisning af 10%-reglen for dagslys jf. BR18
- Timebaserede dagslysberegninger og Daylight Autonomy
- LightStanza/Radiance-beregninger på baggrund af Revit-model
- Vurdering af glasarealer, rumdybde, udhæng, sidefremspring og skygger
- Dokumentation til myndighedsprojekt, DGNB, bygherrekrav og projektering
Valg af metode
10%-reglen og timebaseret dagslys er ikke samme dokumentation
10%-reglen bruges typisk som en mere enkel eftervisning af glasareal i forhold til gulvareal, hvor det faktiske glasareal korrigeres for de forhold, der reducerer dagslysadgangen. Metoden er især relevant i boligprojekter, hvor dokumentationsbehovet kan afklares med korrigeret glasareal.
Timebaserede beregninger giver et mere detaljeret billede af dagslystilgængeligheden over tid. Her beregnes blandt andet, hvor stor en del af opholdszonen der opnår et bestemt luxniveau i en given andel af dagslystimerne. Det er relevant ved DGNB, komplekse geometrier og projekter, hvor facade, skygger og rumdybder skal optimeres.
10%-reglen
Korrigeret glasareal vurderes i forhold til gulvareal og aktuelle skyggeforhold.
Daylight Autonomy
Timebaseret beregning af dagslys i opholdszonen over årets dagslystimer.
Revit
Geometri, rum, vinduer, placering og facadeforhold bruges som beregningsgrundlag.
Radiance
LightStanza-beregninger udføres med Radiance som dagslysmotor.
BR18 10%-reglen
Eftervisning af dagslys med korrigeret glasareal
Ved eftervisning af 10%-reglen beregnes det glasareal, der må medregnes efter korrektion for dagslysreducerende forhold. Det betyder, at et stort vindue ikke nødvendigvis tæller fuldt, hvis dagslysadgangen reduceres af dybe vægge, udhæng, sidefremspring, omgivelser eller stor rumdybde.
I dokumentationen indgår typisk lystransmittans, vægtykkelse, skygger fra omgivelserne, udhæng over vinduet, fremspring ved siden af vinduet, rumdybde og eventuelle vinduer i flere flader. Resultatet opgøres som korrigeret glasareal i forhold til boligareal eller relevant opholdszone.
Typiske korrektionsfaktorer
- Rudens lystransmittans
- Vinduesvæggens tykkelse
- Skygger fra omgivelser og nabobygninger
- Udhæng over vindue og sidefremspring
- Korrektion for stor rumdybde
- Vinduer i flere facadeflader
Timebaseret beregning
Daylight Autonomy viser dagslyset over tid
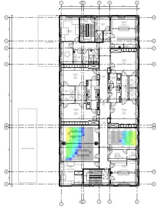
I timebaserede dagslyssimuleringer vurderes dagslysniveauet i et beregningsnet i opholdszonen. I stedet for kun at se på et statisk øjebliksbillede viser beregningen, om rummet opnår tilstrækkeligt dagslys gennem dagslystimerne.
En typisk dokumentation kan for eksempel eftervise, at dagslyset opnår mindst 300 lux på en relevant del af gulvarealet i en krævet andel af dagslystimerne. Ved danske forhold kan dette også kobles til dagslysfaktor og DS/EN 17037-principper, afhængigt af projektets krav.
Rapportgrundlag
Det beregningen bør tage højde for
Dagslysberegninger bliver kun brugbare, hvis forudsætningerne svarer til projektet. Derfor modelleres relevante omgivelser, skyggevirkninger, vinduesplacering, glasandel, lystransmittans og overfladereflektanser.
Input
Revit-model, rumfunktioner, opholdszoner, vinduer, glasdata og facadeforhold gennemgås.
Model
Omgivelser, nabobygninger, udhæng, fremspring og skyggeforhold medtages, hvor de påvirker dagslyset.
Beregning
10%-reglen eller timebaseret LightStanza/Radiance-beregning udføres afhængigt af krav.
Notat
Resultater, forudsætninger, kritiske rum og eventuelle optimeringsforslag samles i et beregningsnotat.
Optimering
Dagslys påvirker også indeklima, energi og arkitektur
Glasareal, rumdybde og facadeudformning påvirker ikke kun dagslys. De påvirker også risiko for overtemperatur, behov for solafskærmning, ventilationsstrategi og energiforbrug. Derfor bør dagslys vurderes sammen med indeklima og energi, før facaden låses.
SORI kan pege på konkrete justeringer, for eksempel ændret glasandel, lystransmittans, facadeopbygning, solafskærmning, rumdisponering eller materialevalg. Målet er ikke bare at bestå et krav, men at skabe et rum der fungerer for brugerne.
Beregningseksempler
Resultaterne skal være forståelige for projektgruppen
Grafiske resultater gør det lettere at se, hvor dagslyset er stærkt, hvor der er risiko for utilstrækkeligt dagslys, og hvilke rum der er kritiske for projektet. Det er særligt nyttigt i dialogen mellem arkitekt, bygherre, energi-/indeklimarådgiver og myndighed.
Relaterede ydelser
Dagslys bør vurderes sammen med indeklima og energi
Dagslys, glasareal, solindfald, overtemperatur og energiramme påvirker hinanden. Derfor bør dagslysdokumentation ofte koordineres med indeklimaberegninger, ventilation og energikrav tidligt i projekteringen.
FAQ
Spørgsmål om dagslysberegninger
Hvornår kan 10%-reglen bruges?
10%-reglen kan ofte bruges som dokumentation i boligprojekter, hvor korrigeret glasareal i forhold til gulvareal er tilstrækkeligt til at eftervise dagslysadgang efter BR18.
Hvornår er timebaseret dagslysberegning relevant?
Timebaserede beregninger er relevante ved DGNB, bygherrekrav, komplekse facadeforhold, skygge fra omgivelser eller når projektet skal optimere dagslys mere detaljeret end 10%-reglen tillader.
Kan beregningerne udføres på baggrund af Revit-model?
Ja. SORI kan udføre dagslysberegninger på baggrund af Revit-model, hvor rumgeometri, vinduer, materialer, omgivelser og skygger indgår i beregningsgrundlaget.
Hænger dagslys sammen med overtemperatur?
Ja. Mere glas kan give mere dagslys, men også mere solindfald og risiko for overophedning. Derfor bør dagslys vurderes sammen med energi, ventilation og indeklima.
Kontaktperson
Tal med Frederik om dagslysberegninger
Frederik kan hjælpe med dagslysberegninger, timebaseret Daylight Autonomy, LightStanza og dokumentation til BR, DGNB eller bygherrekrav.
Du kan også bruge hovednummeret, så finder vi hurtigt den rette rådgiver til opgaven.
